Detached Single Family
Waterfront: Gulf (54 ft)
MLS: 328090
469 Haven Rd Port St. Joe, FL 32456$3,495,000
- Bedrooms: 7 Beds
- Bathrooms: 7 Bath, 2 Half Bath
- Area:4840 sq ft
- Stories
- Property Type:Detached Single Family
- Acreage:0.5
- Construction:Frame,Masonite
- Lot Dimensions:54x403
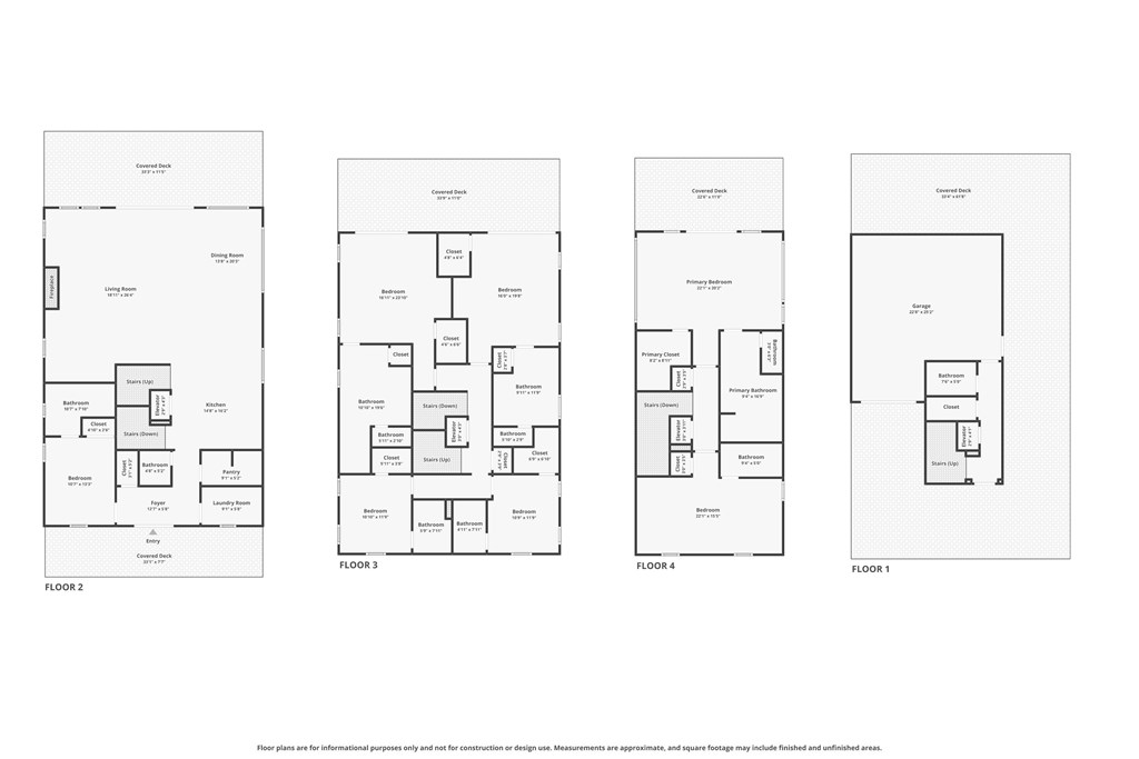
“Mellow Yellow” is an expansive 7-bedroom, 7 full bath, 2 half bath coastal retreat! This stunning beach house offers luxury, space, & income potential—all just steps from the beach. Each of the seven bedrooms includes its own private en-suite bath & closet. The main living level is designed for gathering, with an open-concept layout that seamlessly connects the living room, kitchen, & dining area. A bedroom, laundry room, half bath, oversized walk-in pantry, & storage closet are also conveniently located on this level. Just off the living room, step out to the pool deck featuring a heated pool & generous outdoor entertaining space. The third level offers 4 spacious bedrooms, each with private baths & walk-in closets. Two of these bedrooms enjoy Gulf views & access to a shared balcony, ideal for catching coastal breezes & sunset skies. The top floor includes the primary suite with a private Gulf-view balcony, walk-in closet, en-suite bath, along with an additional bedroom with two sets of bunk beds, a sitting area, closet, & private bath. Additional features include an elevator servicing all levels, a bar area with wine/beer refrigerator, full-size ice maker, outdoor shower, and a private boardwalk providing direct access to the beach. The ground level offers a one-car pull-in garage with additional storage space, workshop space, an additional half bath, a large storage closet with both interior & exterior access. Whether you're searching for a primary residence, private coastal retreat, or an income-producing vacation rental, this property delivers exceptional flexibility. Offered TURNKEY, it's ready for immediate enjoyment or rental income. Spend your days relaxing by the pool, fishing, boating, kayaking, and enjoying the Gulf & your evenings watching breathtaking sunsets from the balcony or by a fire on the beach. Located just minutes to local favorites like Skully's Low Country Boil, Indian Pass Raw Bar, and Cone Heads 8020, this is coastal living at its best.
- Drapery Rods
- Elevator
- Fireplace
- Kitchen Island
- Pantry
- See Remarks
- Split Bedroom
- Storage
- Walk-In Closet(s)
- Washer/Dryer Hookup
- Wet Bar
- Window Treatment All
- Covered
- Driveway
- Garage Attached
- Cable Connected
- Electricity Connected
- Phone Connected
- Sewer Connected
- Water Connected
Port St. Joe, right on US-98, veer onto CR 30A, right on Cape San Blas Rd, left on Haven Rd, property on left.
Property information provided by the Forgotten Coast REALTOR® Association, Inc. IDX information is provided exclusively for consumers' personal, non-commercial use, and may not be used for any purpose other than to identify prospective properties consumers may be interested in purchasing. This data is deemed reliable but is not guaranteed accurate by the MLS.



































































































