Detached Single Family
Waterfront: Pond
MLS: 328088
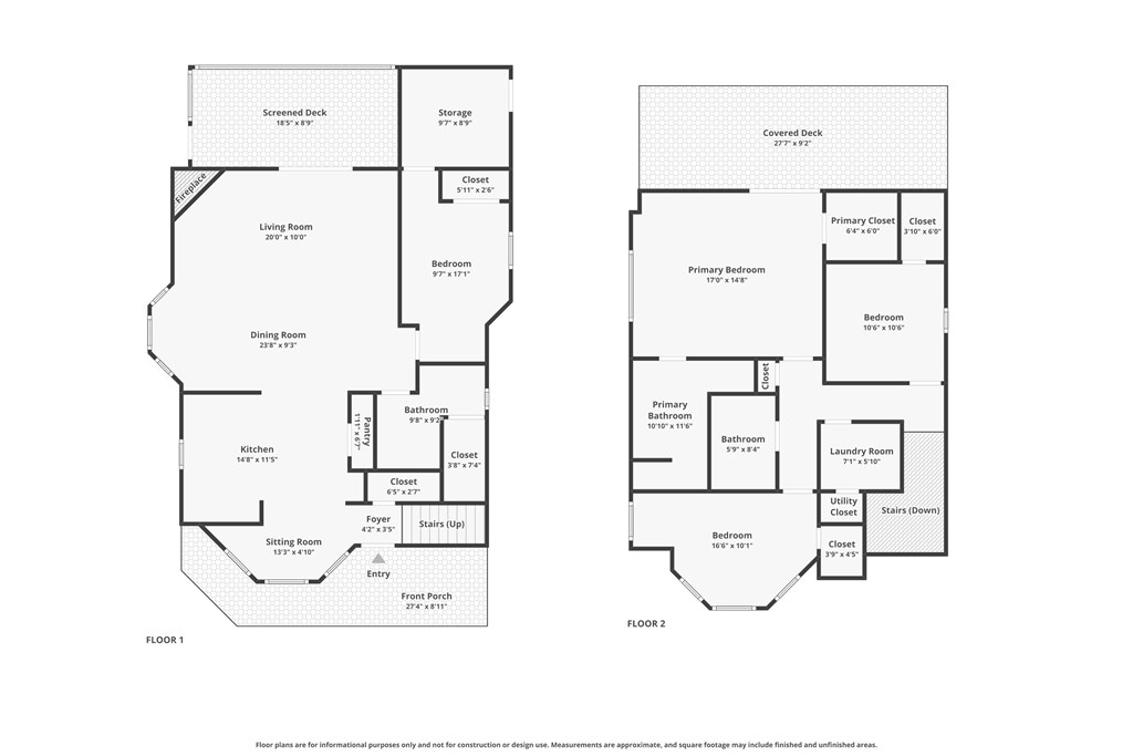
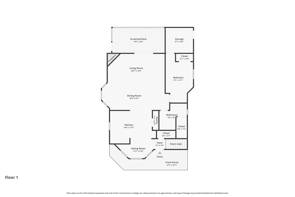
111 Parkside Cir Cape San Blas, FL 32456$637,900
- Bedrooms: 4 Beds
- Bathrooms: 3 Bath
- Area:1895 sq ft
- Stories
- Property Type:Detached Single Family
- Acreage:0.11
- Construction:Vinyl Siding
- Lot Dimensions:85x65
- HOA Fee:$375 / Monthly
- Includes:Accounting,Internet,Legal,Management,Maintenance Grounds,Pest Control,Recreational Facilities,Trash
COASTAL 2-STORY BEACH COTTAGE overlooking the pond in Barrier Dunes community on North Cape San Blas. Perfectly positioned just a short walk away from the entrance to St. Joseph Peninsula State Park, this home offers effortless access to miles of unspoiled shoreline, natural beauty, and one of Florida's most pristine beaches. This fully furnished, turnkey property truly stands apart. As a detached single-family home rather than a duplex or townhome, it provides enhanced privacy along with great short-term rental potential. Overlooking the peaceful community pond, the home features four bedrooms, three bathrooms, a bright open-concept layout, coastal-inspired finishes, and inviting indoor-outdoor living spaces designed for relaxed beachside living. Quietly positioned within a gated, amenity-rich beachfront community, Barrier Dunes offers multiple private beach access points, a Gulf-front pool and clubhouse, a second pool, pickleball and tennis courts, stocked fishing ponds, a playground, and bayside access ideal for kayaking and paddleboarding. Whether you're searching for a private getaway or a investment property, this one checks every box. Walkable to the beach and bordering St. Joseph Peninsula State Park (named #1 Beach in America), offering miles of hiking and biking trails, along with fishing, boating, and opportunities to experience Florida's natural beauty and wildlife.
- Breakfast Bar
- Crown Molding
- Fireplace
- French Doors
- Pantry
- Recessed Lighting
- Walk-In Closet(s)
- Washer/Dryer Hookup
- Window Treatment All
- Woodwork Painted
- Driveway
- Cable Available
- Electricity Connected
- Internet Available
- Sewer Connected
- Tap Fee Paid
- Underground Utilities
- Water Connected
From HWY 98 turn onto SR 30-A. Go for 6.7mi and turn onto Cape San Blas Rd. Go for 8.7mi and turn left onto Seacliff Dr. Go for half a mile and turn left onto Barrier Dunes Dr. Make first right onto Parkside Circle home is on the corner to your left.
Property information provided by the Forgotten Coast REALTOR® Association, Inc. IDX information is provided exclusively for consumers' personal, non-commercial use, and may not be used for any purpose other than to identify prospective properties consumers may be interested in purchasing. This data is deemed reliable but is not guaranteed accurate by the MLS.







































































































