Detached Single Family
Waterfront: Gulf (50 ft)
MLS: 327989
195 Swirly Sun Dr Port St. Joe, FL 32456$2,999,000
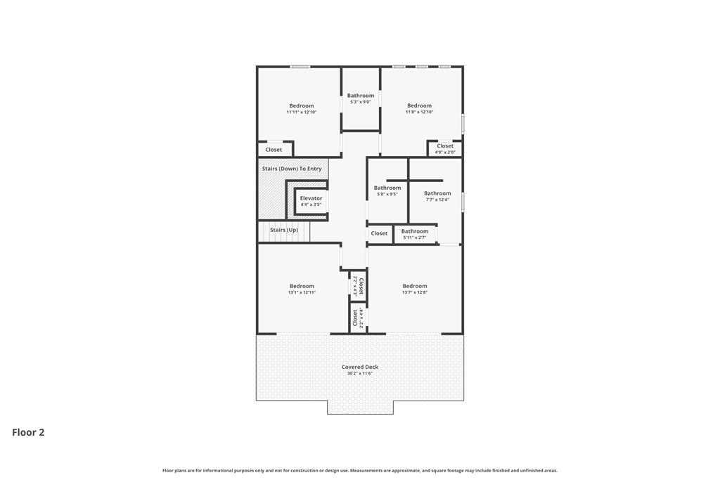
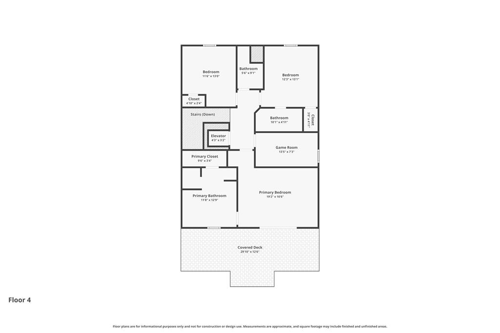
- Bedrooms: 7 Beds
- Bathrooms: 6 Bath, 2 Half Bath
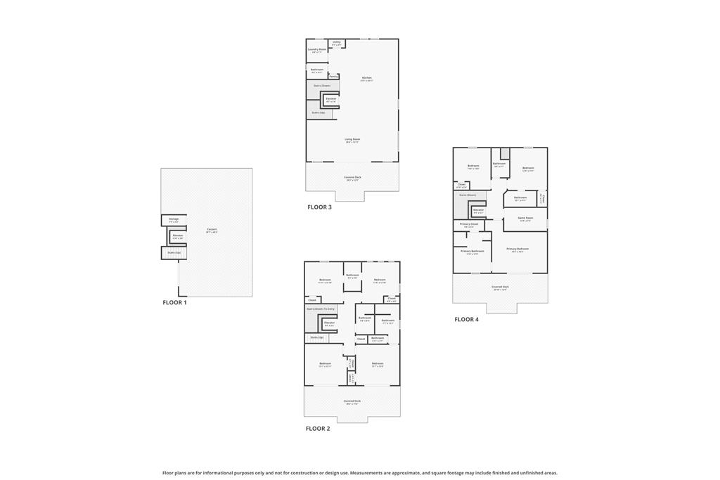
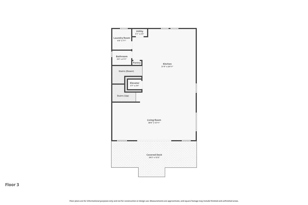
- Area:3492 sq ft
- Stories4
- Property Type:Detached Single Family
- Acreage:0.667
- Construction:HardiPlank Type
- Lot Dimensions:50x581
Swirly Sunsets on North Cape San Blas checks every box for an exceptional beachfront retreat. This 7-bedroom home was designed for large groups to enjoy outstanding comfort, luxury, and amenities, all overlooking the Gulf. Guests will love the heated and chilled beachside pool, hot tub, firepit, arcade room, elevator, game deck, and more in this well-built and thoughtfully designed property. Located in an area with an expansive beach and a large protective dune, this home offers both beauty and peace of mind. Personally built and owned by a local builder and Realtor, every detail of the construction and design was carefully planned to maximize space, enjoyment, durability, and rental performance. Completed in summer 2023, the home has been a proven income producer from the start, generating $280,000 in gross rental income in 2024 and $277,000 in 2025. Every finish, furnishing, and feature was selected to provide a luxurious guest experience while standing up to the demands of a high-performing vacation rental. This property is being sold fully furnished, decorated, and equipped as shown. Both listing agents are owners and will consider owner financing for up to 5 years with at least 20% down, minimum 7% rate.
- Breakfast Bar
- Elevator
- Recessed Lighting
- See Remarks
- Walk-In Closet(s)
- Washer/Dryer Hookup
- Wet Bar
- Driveway
- Under House With Pad
- Electricity Connected
- Internet Available
- Sewer Connected
- Water Connected
Take CSB Road all the way and turn onto Seacliff Drive. Swirly Sun Drive will be on the left about .19 miles, and follow road to the end.
Property information provided by the Forgotten Coast REALTOR® Association, Inc. IDX information is provided exclusively for consumers' personal, non-commercial use, and may not be used for any purpose other than to identify prospective properties consumers may be interested in purchasing. This data is deemed reliable but is not guaranteed accurate by the MLS.

































































































