Detached Single Family
Waterfront: Bayfront (75 ft)
MLS: 327642
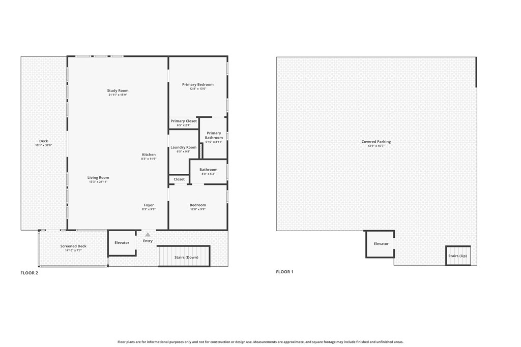
961 Cape San Blas Rd Cape San Blas, FL 32456$799,900
- Bedrooms: 2 Beds
- Bathrooms: 2 Bath
- Area:1443 sq ft
- Stories
- Property Type:Detached Single Family
- Acreage:1.63
- Construction:HardiPlank Type,ICFs (Insulated Concrete Forms)
- Lot Dimensions:75 x 930
CHARMING BAYFRONT ICF HOME ON SOUTH CAPE SAN BLAS WITH BEACH ACCESS. This 2BR - 2 BA,thoughtfully designed property has never been rented and has been carefully maintained, offering a opportunity for a private coastal retreat or full-time residence.Each bedroom features its own private bathroom, providing comfort and privacy for owners and guests. The home's durable Insulated Concrete Form (ICF) construction delivers exceptional strength, energy efficiency, and resistance to fire, storms, mold, and pests, while also providing superior noise reduction. Spaciousopen-concept living, dining, and kitchen area creates an inviting central space for the home, providing ample room for gatherings, entertaining, or accommodating larger families while enjoying the relaxed coastal lifestyle.Largepanoramic windowsframe stunning bay views and fill the home with natural lightthe home features granite countertops throughout, stainless steel appliances, custom shades and shutters, and custom built-in bookshelves, a desk, and buffet cabinetry that enhance both style and functionality.Outdoor living is just as impressive with a large deck featuring a screened area, perfect for enjoying breezes off the bay. Additional conveniences include an elevator, a storage shed, an outdoor hot-water shower, a security system, a dehumidifier, and a water purifier.Explore the beaches, take leisurely walks along the shoreline, enjoy a day of swimming with beach access conveniently located just across the road on Pebble Beach Way, or ride the bike path right outside the home to Salina's Park for pickleball and other recreational activities. For the water enthusiasts, this area is a haven for fishing, boating, kayaking, and paddle boarding, offering a variety of opportunities to experience the rich marine life. This propertycombines strong construction, thoughtful design, and a prime bayfront setting,making it an exceptional opportunity on Cape San Blas.
- Bay Window(s)
- Bookcases
- Elevator
- Kitchen Island
- Pantry
- Raised Ceiling(s)
- Recessed Lighting
- Shelving
- Smoke Detector
- Washer/Dryer Hookup
- Window Treatment All
- Woodwork Painted
- Covered
- Driveway
- Under House No Pad
- Cable Connected
- Electricity Connected
- Internet Available
- Phone Connected
- Sewer Connected
- Underground Utilities
- Water Connected
From HWY 98 turn onto SR-30A and go for 6.7 mi. Turn onto Cape San Blas Rd and go for 0.9 mi. Home will be on your right, look for sign.
Property information provided by the Forgotten Coast REALTOR® Association, Inc. IDX information is provided exclusively for consumers' personal, non-commercial use, and may not be used for any purpose other than to identify prospective properties consumers may be interested in purchasing. This data is deemed reliable but is not guaranteed accurate by the MLS.
















































































