Detached Single Family
MLS: 325229
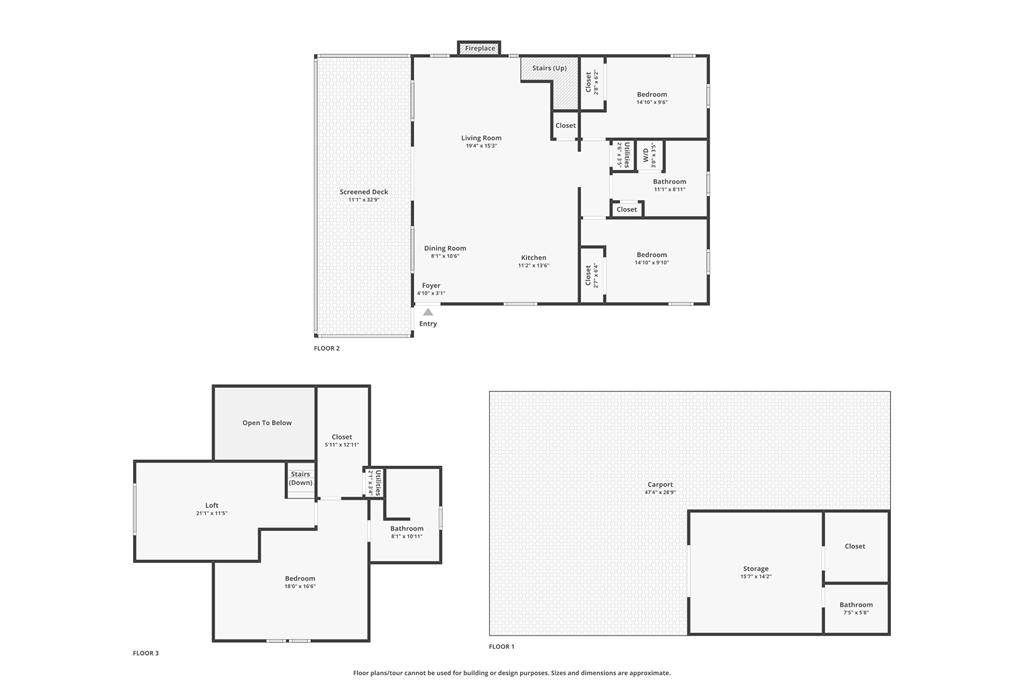
125 Canoe Ln Port St. Joe, FL 32456$849,000
- Bedrooms: 3 Beds
- Bathrooms: 3 Bath
- Area:2300 sq ft
- Stories2
- Property Type:Detached Single Family
- Acreage:0.48
- Construction:Frame,HardiPlank Type
- Lot Dimensions:75' x 285'
Outstanding Gulf views from this recently improved 3 bedroom, 3 full bathroom first tier home in an Old Florida setting with easy beach access without an HOA. This elevated home is well-appointed with an expansive screened porch facing the Gulf, an exterior cargo lift, and plenty of room for larger boat or RV covered parking under the home. The living room features high, beamed ceilings with plenty of natural light from the custom windows with plantation shutters and a fireplace. The large 75' wide property measures just under a half acre with FEMA eligibility and could support a pool and/or guest house addition on the back of the property. The ground level storage and workshop area includes a full bathroom along with a separate outdoor shower and fish cleaning station. Great location just off CR 30-A between Cape San Blas and Indian Pass, conveniently close to the charming coastal towns of Apalachicola and Port St. Joe, and right down the road from the Indian Pass Raw Bar and public boat ramp. The deeded beach access boardwalk is directly in front of the home, very short and convenient walk to the unspoiled beaches of Indian Pass and CR 30-A, and there is a public boat ramp less than 3 miles away down Indian Pass Road.
- Beamed Ceilings
- Fireplace
- French Doors
- Kitchen Island
- Pantry
- Plantation Shutters
- Raised Ceiling(s)
- Smoke Detector
- Storage
- Walk-In Closet(s)
- Washer/Dryer Hookup
- Window Treatment All
- Covered
- Driveway
- Golf Cart-Enclosed
- Under House With Pad
- Electricity Connected
- Internet Available
- Water Connected
Turn onto Barefoot Trail off CR 30-A just before The Raw Bar and Indian Pass Road. Turn R on Canoe Lane and 125 Canoe Lane will be on your R, sign on property.
Property information provided by the Forgotten Coast REALTOR® Association, Inc. IDX information is provided exclusively for consumers' personal, non-commercial use, and may not be used for any purpose other than to identify prospective properties consumers may be interested in purchasing. This data is deemed reliable but is not guaranteed accurate by the MLS.





















































