Detached Single Family
MLS: 325057
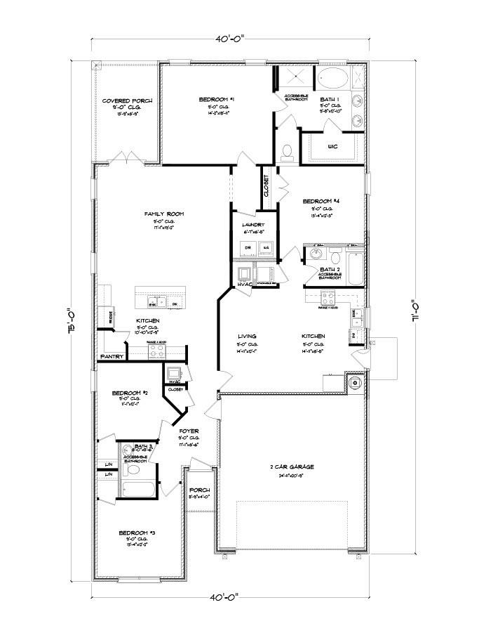
1065 Backwater Rd Port St. Joe, FL 32456$484,900
- Bedrooms: 5 Beds
- Bathrooms: 3 Bath
- Area:2145 sq ft
- Stories
- Property Type:Detached Single Family
- Acreage:0.12
- Construction:HardiPlank Type
- Lot Dimensions:50x110
Welcome to 1065 Backwater Rd located in the beautiful new home community of Windmark Beach in Port St. Joe, Florida. This Kennedy floor plan is situated on an interior lot and features 5-bedrooms, 3-bathroom an open concept living space. When you enter this beautiful home, you will notice beautiful granite countertops with undermount sinks in the kitchen and all bathrooms, 5 panel wood doors, engineered vinyl plank flooring throughout the entire home and 9-foot ceilings throughout. This unique floor plan features a mother-in-law suite complete with its own entrance, kitchen, bedroom, bathroom, heating and cooling and laundry. This is perfect for having family in town, or possibly having a roommate in this cozy community. Windmark Beach is a tranquil community where one can enjoy the natural settings with boardwalks, walking paths, bike trails, and deeded beach access. Windmark Beach also offers residents numerous luxury amenities and features including a community pool, a gym, restaurants, packaging store/bar, beach equipment rentals, roving security, community fire pit, local shopping, and a versatile community center. Homes are subject to prior sale or rent. Home and community information, association fees (if any), included features, terms, availability and amenities, are subject to change at any time without notice or obligation. Drawings, pictures, photographs, videos, square footages, floor plans, elevations, features, colors and sizes are for illustration purposes only and will vary from the homes as built.
- Tray Ceiling(s)
- Recessed Lighting
- Other
- Pantry
- Smoke Detector
- Walk-In Closet(s)
- Washer/Dryer Hookup
- Driveway
- Garage Attached
- Cable Available
- Electricity Connected
- Phone Available
Traveling East on Hwy 98 from Mexico Beach, turn right on to Backwater Water.
Property information provided by the Forgotten Coast REALTOR® Association, Inc. IDX information is provided exclusively for consumers' personal, non-commercial use, and may not be used for any purpose other than to identify prospective properties consumers may be interested in purchasing. This data is deemed reliable but is not guaranteed accurate by the MLS.






































