Pre-Construction
MLS: 325020
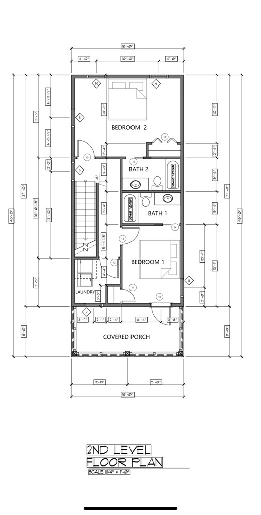
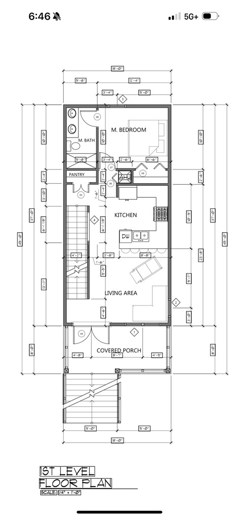
828 Oleander Ave Mexico Beach, FL 32456$850,000
- Bedrooms: 3 Beds
- Bathrooms: 2 Bath
- Area:1472 sq ft
- Stories2
- Property Type:Pre-Construction
- Acreage:0.009
- Construction:Concrete,HardiPlank Type
- Lot Dimensions:35x122
Coastal Lot with Custom Home Plans – Steps from the Beach! Welcome to 828 Oleander Avenue in beautiful Mexico Beach, FL! This prime homesite is just a short stroll or golf cart ride to the white sand beaches and offers a rare opportunity to build your dream coastal retreat or vacation rental. Public utilities are available, with no HOA and no build-out time requirement, giving you total flexibility. The lot comes with a complete set of plans for a 3-bedroom, 2-bath beach-style home, perfectly suited for the laid-back lifestyle of the Florida coast. Buyers can choose all finishes and truly create a custom home tailored to their taste—whether you're looking for a full-time residence, second home, or short-term rental investment, this property is ready for your vision. Located in a quiet, golf-cart-friendly neighborhood close to beach access, boat ramps, dining, and local shops, 828 Oleander Avenue is your chance to own a piece of paradise on the Forgotten Coast
- Ceiling Vaulted
- Kitchen Island
- Newly Painted
- Pantry
- Shelving
- Smoke Detector
- Split Bedroom
- Walk-in Closet
- Washer/Dryer Hookup
- Driveway
- Cable Available
- Internet Available
- Natural Gas Connected
- Sewer Available
- Water Available
Hwy 98 to left on Oleander home is on the left
Property information provided by the Forgotten Coast REALTOR® Association, Inc. IDX information is provided exclusively for consumers' personal, non-commercial use, and may not be used for any purpose other than to identify prospective properties consumers may be interested in purchasing. This data is deemed reliable but is not guaranteed accurate by the MLS.







