Detached Single Family
MLS: 324964
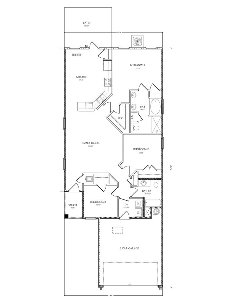
141 Chateau Ln Port St. Joe, FL 32456$299,900
- Bedrooms: 3 Beds
- Bathrooms: 2 Bath
- Area:1427 sq ft
- Stories
- Property Type:Detached Single Family
- Acreage:0.189
- Construction:Frame,HardiPlank Type
- Lot Dimensions:55x150
- HOA Fee:$592 / Quarterly
- Includes:Accounting,Management,Maintenance Grounds,Recreational Facilities
The Celeste floor plan is a 3-bedroom, 2 bathroom, 1,427 square feet open concept home. As you enter, you will notice the living room as the focal point of the home as it opens to the kitchen, hallway, and primary bedroom. The main areas are made with beautiful EVP flooring and carpet in the bedrooms. The kitchen has quartz countertops and shiny stainless-steel appliances including a stove, microwave, and dishwasher. The bathroom also has quartz countertops and EVP flooring, and the primary bathroom features a double vanity while the guest bathroom features a single vanity. Like all homes in Chateau Nemours, the Celeste includes a Home is Connected smart home technology package which allows you to control your home with your smart device while near or away. On the outside you will see Hardie Color Plus Siding which is uniquely engineered to stand up to the harshest elements from wind, rain, fire, freezing temperatures, and hail with a spacious 2 car garage. Each home has dimensional shingles with a 30-year warranty. Each yard is fully sodded and has plenty of room to enjoy activities with your family or friends. Our Chateau Nemours community features underground utilities making it less susceptible to damage from severe weather leading to fewer outages and more reliable service. Residents of Chateau Nemours can enjoy exclusive access an amenity center complete with a pool and playground for all to enjoy. Whatever home you're looking for, you will find one at Chateau Nemours. Stop by the model home or schedule a tour online today!
- Carbon Monoxide Detector
- Computer Controlled Security System
- Lighting Recessed
- Pantry
- Security System
- See Remarks
- Smoke Detector
- Walk-in Closet
- Washer/Dryer Hookup
- Driveway
- Garage Attached
- Other
- Cable Available
- Electricity Connected
- Internet Available
- Phone Available
- Sewer Connected
- Underground Utilities
- Water Connected
Traveling south on Highway 98 after Port St Joe city limits, follow US Highway 98 past Ascension Sacred Heart. Chateau Lane will be on the right hand side approximately 1 mile after the hospital. Turn right.
Property information provided by the Forgotten Coast REALTOR® Association, Inc. IDX information is provided exclusively for consumers' personal, non-commercial use, and may not be used for any purpose other than to identify prospective properties consumers may be interested in purchasing. This data is deemed reliable but is not guaranteed accurate by the MLS.































