Detached Single Family
Waterfront: Gulf (53 ft)
MLS: 324929
2298 Indian Pass Rd Port St. Joe, FL 32456$1,250,000
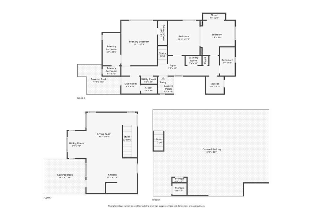
- Bedrooms: 3 Beds
- Bathrooms: 2 Bath
- Area:1621 sq ft
- Stories2
- Property Type:Detached Single Family
- Acreage:1.19
- Construction:HardiPlank Type,Metal Siding
- Lot Dimensions:53' x 1069'
Custom-designed and thoughtfully positioned, this beachfront home on the Indian Pass peninsula offers rare privacy, elevation, and protection set back from the shoreline and surrounded by mature live oaks, palms, and pines. The setting captures true Old Florida character, perfectly paired with modern coastal architecture featuring corrugated metal and durable Hardi-plank siding, and subtle, natural color tones that blend into the landscape. Inside, the home showcases cypress wood floors, mahogany countertops, and custom windows, cabinetry, shelving, and tilework, all executed with intention and craftsmanship. First-level bedrooms feature 9-foot ceilings, while the top floor opens up to an impressive 11'8” elevated ceiling, creating a light-filled living space that feels like a refined treehouse overlooking the Gulf. Situated on over one acre of Gulf-front property, the lot spans approximately 50 feet from Indian Pass Road to the beach, offering both accessibility and privacy. Gulf views can be enjoyed from the upper level, and a new elevated boardwalk provides an easy walk to the unspoiled, pet-friendly beaches of Indian Pass. For boating and fishing enthusiasts, a public boat ramp just down the road offers quick access to the Gulf of Mexico, Apalachicola Bay, and Indian Lagoon making this an ideal base for coastal adventures. Private, elevated, architecturally distinctive, and surrounded by natural beauty, this is a rare opportunity to own an Indian Pass beachfront retreat where Old Florida charm meets modern coastal living.
- Breakfast Bar
- Built-in Bookcase
- Ceiling Raised
- Drapery Rods
- Shelving
- Window Treatment All
- Boat
- Covered
- Driveway
- Under House With Pad
- Electricity Connected
- Internet Available
- Underground Utilities
- Water Connected
Drive east down Indian Pass Road towards the boat ramp, 2298 Indian Pass Road will be on your R, sign on property.
Property information provided by the Forgotten Coast REALTOR® Association, Inc. IDX information is provided exclusively for consumers' personal, non-commercial use, and may not be used for any purpose other than to identify prospective properties consumers may be interested in purchasing. This data is deemed reliable but is not guaranteed accurate by the MLS.
























































